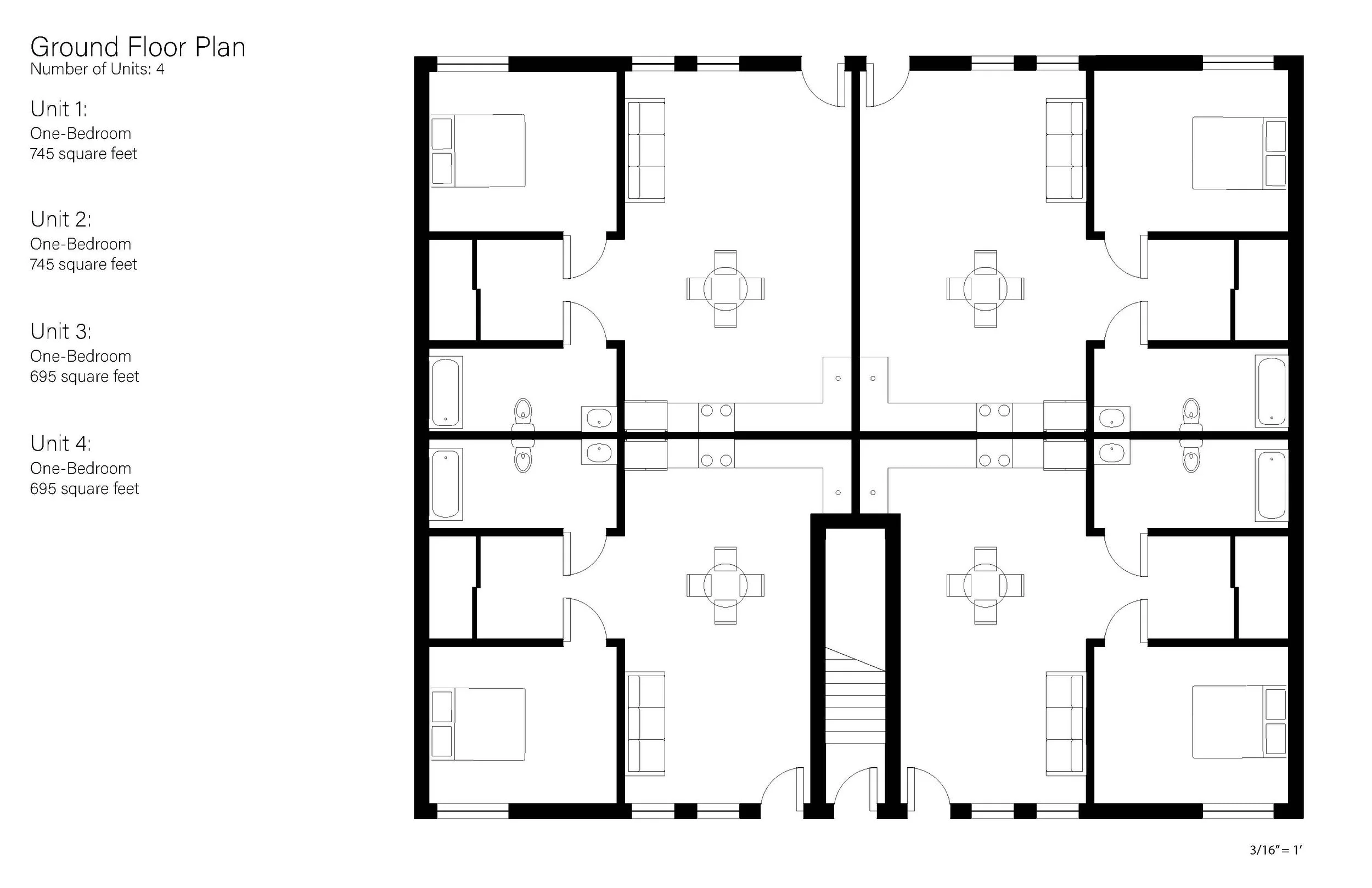
Urban Walk-up Housing

2020 | Northeastern University

Located in Roxbury, Massachusetts, this project offers a solution to large-scale walk-up urban housing. Keeping within the restraints of Massachusetts fire code, this four-story 58 unit structure accounts for accessibility within ground-floor units and throughout the site. This project, while centered around accessibility and code compliancy, also aims to create an urban space where residents enjoy spending their time, whether it be in their unit or outside with their community.

Previous
Previous

Victoria's Secret

Next
Next

Architectonics